3D computer design
With ACC's 3-D computer design modeling tools, you can see your finished design before construction begins..........
It's almost like magic!!!
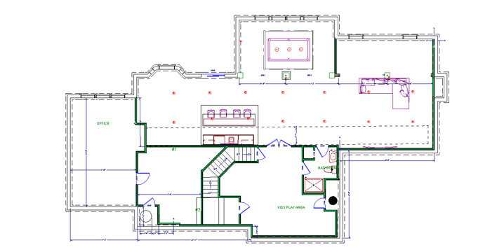
Why the floor plans are important ? The end result...spectacular computer renderings of your project, precise specifications and best of all... happy clients! As you might expect, a professional floor plan requires many hours of preparation and computer input before your design is ready for presentation. Some of builders offer what is termed " free design." This can often be an outline/drawing of your project using either a basic home computer design program or a traditional pencil/graph paper illustration. Neither of which provide the exacting details most homeowners need to have before making such a sizable investment in their home. Worse yet, bargain basement designs fail to carefully detail the many aspects of construction. End result? Ultimately much higher cost than originally projected in the initial estimate. Unfortunately this is a costly lesson the homeowner only learns after the project gets underway. We do charge for floor plans ...and for good reason. Our fee reflects the many hours (not minutes) spent in preparing a basement floor plan that illustrates the many details of your basement's construction. We visit your home, learn of your specific needs, take exacting measurements, and eventually consult with other subcontractors about a multitude of construction details. All of which requires a considerable amount of time. Our detailed floor plans may include anything from room design to the type of custom wood trim or floor coverings you wish to install. During our first no obligation in-home visit, you'll have opportunity to review our portfolio of previous projects and see the many floor plans and projects we've done for other Pennsylvania homeowners. If you would like for us to provide you with a full Design computer drawings of your basement, we charge a fee to cover the time involved in producing the drawings, that fee is refundable if we are hired to finish your basement. A full 3D Design Plan with Chief Architect software Starts at $500. For homeowners electing to choose us as their Builder of Choice, our floor plan /design fee is always credited back to your project's cost. Once your custom floor plans are paid for in full, however, they are yours to do with as you choose. You are under absolutely no obligation to hire us as your contractor. We are working with three different designers and one of them is always available to answer your needs. |
See your finished basement project before the work begins |
![]() |
![]() |
![]() ![]() ![]() ![]() ![]() ![]() ![]() |
![]() |
![]() |
| |
![]() | See the finished work - in 3D before the job begins. Insure that you and your family - or business will be satisfied with your project when your basement is finished by use of our advanced computer 3d Design. |
| If you haven't experienced it yourself, you've no doubt heard the horror stories. Designs that sounded great, but ended up looking like nothing you ever imagined. | |
New construction and basement remodeling can add value to your home or business.
** With Acumen as your designer, you can see your newly planned home or
business project before work begins using our advanced computer modeling tools
Recent projects Gallery Home theater Built-ins Arches Bars 3D design Back to Home
The costs Questions Egress windows Testimonials About us Contact us Back to top











